住宅产品的七大创新趋势
房地产行业发展模式全面回归产品品质,行业的产品力已经从量变完成了质变,“良币驱逐劣币”成为趋势。
过去一年,市场的下行筑底进一步激发了产品力的提升,房企通过各个维度持续优化迭代产品以抢占新房份额,高品质的住宅产品不断涌现。
近期,克而瑞发布了2024年度十大标杆作品,其背后也暗藏着行业产品创新的几个方向,具体来看,四代宅产品的普及、实得面积的提升、大平层的创新设计、主卧的升级、满装样板间的流行、公区工艺精细化以及DFC数字建造技术的应用这七个方面已成为主要的住宅产品趋势。
产品背后的创新趋势将共同推动住宅产品向更高品质和更优居住体验的方向发展。
01
住宅规范突破
四代宅成为行业新宠
随着政策推动以及购房者对居住品质的更高要求,第四代住宅正逐渐成为房地产行业的新宠。
四代宅产品率先在西安和重庆实现了落地,并成为市场亮点,随着更多城市出台相关的支持政策,第四代住宅已在贵阳等更多的城市落地。
以贵阳中铁阅山湖·臻藏为例,露台采用三层错层设计,每户均享有9米通高的空中庭院,通过客户调研及当地气候特性,预留灌木与地被种植空间,局部配置的实体栏板与花池,提升高层露台安全舒适感的同时,又有效隔绝错层露台间的视线干扰,确保露台的私密性,优化空间利用。

贵阳中铁阅山湖·臻藏效果图
大多数第四代住宅露台相错的方式仍是双层挑高、奇偶错层。
比如中国电建·重庆之丘139㎡户型,奇数层挑高露台围绕客餐厅核心互动空间展开,形成270°转角庭院;偶数层与客厅联通,并与两间次卧形成交融场景,由此呈现出多元场景组合,满足多种居住场景需求。

重庆中国电建·重庆之丘139㎡户型图

重庆中国电建·重庆之丘139㎡户型图
更多住宅规范仍在不断被突破,比如北京虽未出台四代宅相关标准政策,但房企已经这一领域积极探索。
以具备典型四代宅特征的北京龙湖中关村·观萃为例,其阳台采用奇偶错层排布设计,挑高可达6米,部分户型可以形成270°转角空间,为居住者提供了更加丰富和多元的生活场景。
随着政策层面的不断开放和市场的日益包容,第四代住宅正在逐渐成为众多城市住宅市场的新风向。

北京龙湖中关村·观萃效果图
02
实得面积越来越高
住宅性价比凸显
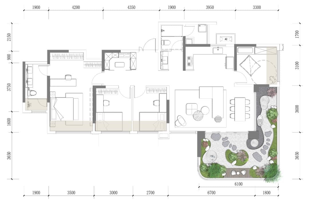
在市场供求关系发生转变的背景下,房企在越来越多的城市开始卷起“实得率”,通过减少公摊、增加赠送面积,来提升项目的实得面积十大入围项目平均得房率92.5%,远超过往,部分项目“实得率”甚至超过100%。
以深圳中铁·能建·阅臻府为例,该项目主力户型是95-138㎡的三至四房,各户型均有大量赠送面积,其中109㎡横厅户型就有宽约4米的阳台面积为半赠送,所有卧室、卫生间、玄关、以及厨房都有赠送的飘窗,使得实际使用率接近99%。

深圳中铁·能建·阅臻府109㎡横厅户型
此外,北京保利颐璟和煦和成都邦泰·悦九章通过设计优化和赠送面积,所有户型“实得率”都超过了100%,为购房者提供了更高的性价比和更多的实际使用空间。
同时,第四代住宅产品能够让购房者获得更多的实用面积。江门保利琅悦全户型全房间极限追求飘窗PIUS赠送,提升窗地比;同时,露台设计采用了奇偶层南北错层的布局,有效提升了居住舒适度和空间利用率。比如185㎡奇数层户型,计入赠送面积后,实用率可达到119%。

江门保利琅悦185㎡奇数层户型
重庆龙湖蓝湖·云河颂也是第四代住宅,其赠送面积更大。200㎡户型通过全赠送的飘窗和空中露台,以及半赠送的阳台,使得户型建面实得面积达到265㎡,实得率近133%。

重庆龙湖蓝湖·云河颂200㎡户型

重庆龙湖蓝湖·云河颂200㎡户型
随着建筑规范的逐渐放宽,住宅产品通过增加赠送面积和优化设计,实现了更高的实得率,为购房者带来了更多的居住空间和更高的性价比。
03
大平层产品多维迭新
传统的大平层产品,也在引入各种创新的设计理念。
以南京绿城华发·金陵月华为例,项目突破常规的单层客厅设计,让空间得以向高处发展,其400㎡户型开创上下两层的错位结构,让上层紧贴下层,实现奇数层和偶数层的垂直咬合,达到空间上的相叠。

南京绿城华发·金陵月华奇偶层关系示意图
从客厅效果看,两层通高的客厅被全落地窗环绕,使得客厅的光线更加充裕,同时提供了更为广阔的视野,不仅在视觉上拉伸了空间,也为居住者带来了270°的环幕观景体验。高层产品的别墅级客厅,强化纵向尺度,显著增强了高端产品的居住空间体验。

南京绿城华发·金陵月华400㎡户型客厅效果图
合肥越秀观樾的创新则是将别墅摊开,其户外庭院景观移至大平层的不同分区中,打造平层化别墅。311㎡户型有着多重户外花园,可以组成不同的生活场景。约74㎡的三合一(客厅、餐厅、中厨)巨厅,搭配约15㎡的L型户外客厅,组成户外花园系统,可以容纳各种类型的家庭宴会、派对。
该户型还设有另一个户外花园空间,创造了一个被双花园包围的无界茶室或书房,这种创新设计打破了室内外空间的传统隔阂,使得交流、阅读和休息等活动都可以围绕花园展开。
第二处户外花园与茶室和长辈套房相邻,一侧直接连接茶室,另一侧则与长辈的房间相通,这样的布局还原了老年人的日常活动场景,如早晨的锻炼、午后的品茶和园艺,为长辈营造了一个充满度假感的生活空间,体现了对长辈的关怀与尊重。
由此,不同家庭成员的需求都得到了细致的考量和满足,别墅的花园场景与家庭成员的日常生活需求相融合,使得花园不再是建筑的附属,而是成为了居住空间的一部分。

合肥越秀·观樾311㎡户型图

合肥越秀·观樾311㎡实景图

合肥越秀·观樾311㎡实景图
04
主卧升级已成为主流趋势
高品质居住要求对主卧空间的要求也不断升级,从满足基本的睡眠和洗漱功能,逐渐演变为一个能够提供更多场景体验的私密空间。因此,提升主卧舒适性已成为主流趋势,多采用超广角的采光与视野,满足主卧舒适性要求。比如十大标杆作品中多个产品主卧配有270°转角窗。
以佛山龙湖·御湖境为例,112-190㎡所有户型均配有270°主卧转角飘窗,无柱化的设计不仅显著提升了室内的采光效果,还为居住者提供了一个合适的赏景视角。在享受生活、放松身心的时刻,窗外的景观一览无余,无论视觉、感受,均有更好的体验。

佛山龙湖·御湖境190㎡户型

佛山龙湖·御湖境190㎡样板间实景
北京保利颐璟和煦170㎡户型,也有270°观景效果,侧面飘窗与南向阳台相连,营造出一个连续且开阔的观景角度。

北京保利颐璟和煦170㎡户型

北京保利颐璟和煦170㎡样板间实景
另外,全景舱这类创新的景观设计也开始被应用于主卧,提供了U型环绕式的视野体验。
以成都邦泰·悦九章为例,项目所有户型均为全景舱户型,外墙无明显结构柱及实体墙,主卧均为270°环幕设计,三面环绕着大面积的落地玻璃窗,实现真正的环幕无界视野。

成都邦泰·悦九章143㎡高层户型

成都邦泰·悦九章143㎡主卧效果
成都阅天府252㎡端厅户型更是升级至双全景舱设计。客厅、主卧这两个主要的室内场景中,转角处均巧妙地移除了结构柱,代替以圆弧形转角落地窗,从而实现了三面环形采光。

成都阅天府252㎡端厅户型

成都阅天府252㎡外立面
05
室内精装领域持续革新
升级精装交付标准
房企还在室内精装领域持续革新,升级精装交付标准,打造满装样板间,旨在解决购房者需要二次装修的痛点。
比如北京龙湖中关村·观萃首创【SPACE+】极致收纳理念,为购房者提供定制化精装,除了常规玄关柜、橱柜、卫浴柜之外,还扩展到餐边柜、家政柜、主次卧衣柜、飘窗柜、凹龛柜等,从而构成了一个全方位的收纳系统。这种设计不仅提升了空间的利用率,而且极大地增强了住宅的功能性和美观性。

北京龙湖中关村·观萃117㎡样板间客餐厅实景
北京万科东庐的M1.0全屋满装产品更可真正实现拎包入住。项目提供全屋完整收纳,合计10组功能收纳柜,包括玄关柜、中厨柜、餐边柜、冰箱集成柜、客厅飘窗柜、主卧及老人房衣柜、主次卫台盆柜以及家政储物库。除此之外,还提供整屋家电,采用嵌入式设计,统一规划安装。
如此细致周到的一站式家居解决方案,可以为购房者提供直接享受到人性化、智能化、完善化的居住环境,极大地简化了入住过程。

北京万科东庐88㎡样板间客餐厅

北京万科东庐88㎡样板间玄关收纳实景
06
像做室内一样做公区
当前房企越来越卷“实景展示”,作为住宅产品展示的关键环节,房企越来越注重公区的品质把控。
比如为了确保社区公共区域的质量和美观度,房企需要从材料选择到施工工艺的每一个环节精心打磨。
以江门保利琅悦为例,保利发展提出了“100个保式细节”的概念,在设备安装、管道铺设等方面,提前在施工图中进行多专业嵌套,避免设备外露形成的视觉干扰;幕墙和园林、室内交接处,要求多道防水,防止出现大堂浸水的情况,同时交界口使用金属条以实现不同材料的交接精致美观等。

江门保利琅悦典型“保式细节”
在美观度方面,沈阳新希望·D10天誉的入口处塑造双曲外立面,工艺精密,金属线条作为石材拼接处的衔接材料,顶部更有上万片菱形金属薄片,采用背焊接技术,实现了全空间无焊点。通过这种精细的工艺处理,D10天誉展现出了高标准的工艺水平和精工匠造的精神。

沈阳新希望·D10天誉社区入口实景
合肥招商玺的精细设计与非遗手工相得益彰,主入口的金属幕墙,由上万朵山茶花符号logo金属片拼成,而紫铜照壁则是采用非遗工艺手工打造。为了塑造出自然的纹理,工匠们需进行数百万次的纯手工锻打,随后需10人同时安装,历经15道复杂工序方可落地。这一复杂的工艺恰恰体现出项目对细节的精雕细琢。

合肥招商玺实景
07
数字化应用
为住宅产品增值、增效
住宅产品升级迭代的同时,住宅建筑技术也迎来革新,采用DFC数字建造技术,其效益较传统技术有显著提升。
以东莞保利四季和颂为例,在设计阶段,DFC数字建造使得同步建模和施工图导出成为可能,同时支持多线协同工作,有效减少了设计中的错漏碰缺。设计完成后,DFC技术能够自动生成加工图和材料清单,极大节省了时间和人力资源。

东莞保利四季和颂方案阶段线上协同建模
在施工阶段,通过使用三维激光扫描仪采集现场数据,DFC技术能够精确处理并完成场景复原建模,确保施工的精准性。在此基础上,东莞保利四季和颂还采用了AR技术,通过移动设备将施工现场实景与集成模型叠加,便于检查和修正施工中的问题,实现现场0拆改。

东莞保利四季和颂AR可视化辅助工具
通过DFC数字建造技术的应用,不仅提高了设计和施工的效率,还确保了建筑质量和设计的完美呈现,展现了住宅建筑技术革新的力量。
结语
2024年十大作品揭示了产品创新的趋势,无论是四代宅产品普及还是大平层的创新设计,亦或是主卧升级,背后实际代表着住宅产品力不断升级的创新和探索,未来住宅产品将向更高品质、更好的居住体验方向不断迭新。
技术革新和社会进步将推动“好房子”的标准不断进化,高品质的住宅产品将继续主导房地产市场,围绕如何为居住者营造一个更加舒适、健康、便利的居住空间,房企仍在不断探索和实践,为市场持续创新和迭代更高品质产品。
本文来自微信公众号“丁祖昱评楼市”